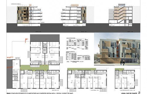
18 VIVIENDAS DE PROTECCIÓN OFICIAL
Maó, Menorca
1er Premio concurso IBAVI 2010
Arquitecta: Isabel Bennasar
Promotor: IBAVI
Colaboradores
Estructures: Manel Fernández, arquitecto
Instalaciones: Miquel González, ingeniero
Mediciones: Catalina Llopis,arq. técnico
Colaboradores: C. Dindareanu, N.Paes, arquitectos
Ejecución: pendiente de ejecución
Superficie: 2.152 m²
Imágenes 3D: MRT arquitectos




